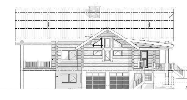
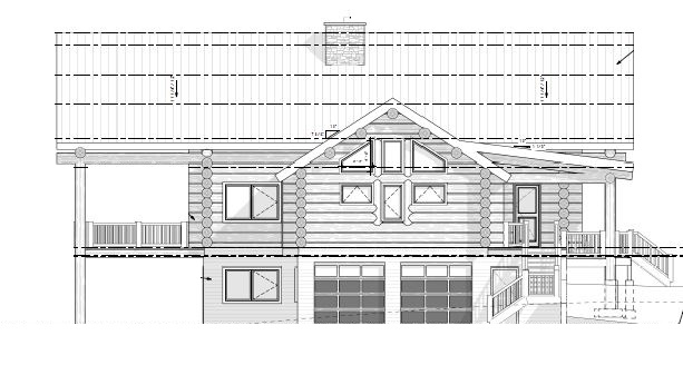
Montana Log Homes has begun construction on another beautiful log home. This home is utilizing 16″ – 17″ average diameter Engelmann Spruce logs in a clean peel.
Follow along as we update progress weekly!
Your email address will not be published. Required fields are marked *
Comment *
Name *
Email *
Website
Save my name, email, and website in this browser for the next time I comment.
Δ
This site uses Akismet to reduce spam. Learn how your comment data is processed.
Full Name Email Address Please leave this field empty.
What is 7 + 4 ?
What is 4 + 5 ?
What is 7 x 6 ?
Order our new Plan Guide
Have questions? Call (406) 752-2992.