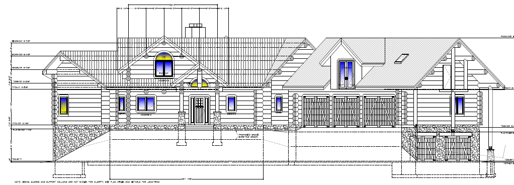
Richards Creek Ranch

Construction has begun on the Richards Creek Ranch home. This home is a custom plan that Brent developed to fit the property and their needs construction plans were created by Jake’s Drafting Service.

We are using dead standing 17″ to 21″ base diameter Engelmann Spruce logs for the construction. When completed it will be disassembled and transported to Colorado and re-assembled on a beautiful site.

Follow along as we handcraft each log into this one of a kind log home!

 

Categories:

Leave a Reply

Your email address will not be published. Required fields are marked *

This site uses Akismet to reduce spam. Learn how your comment data is processed.

Contact Us