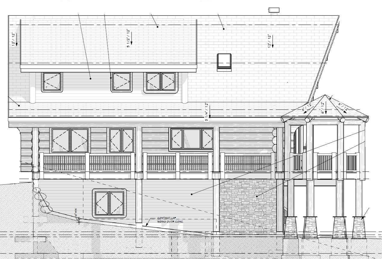
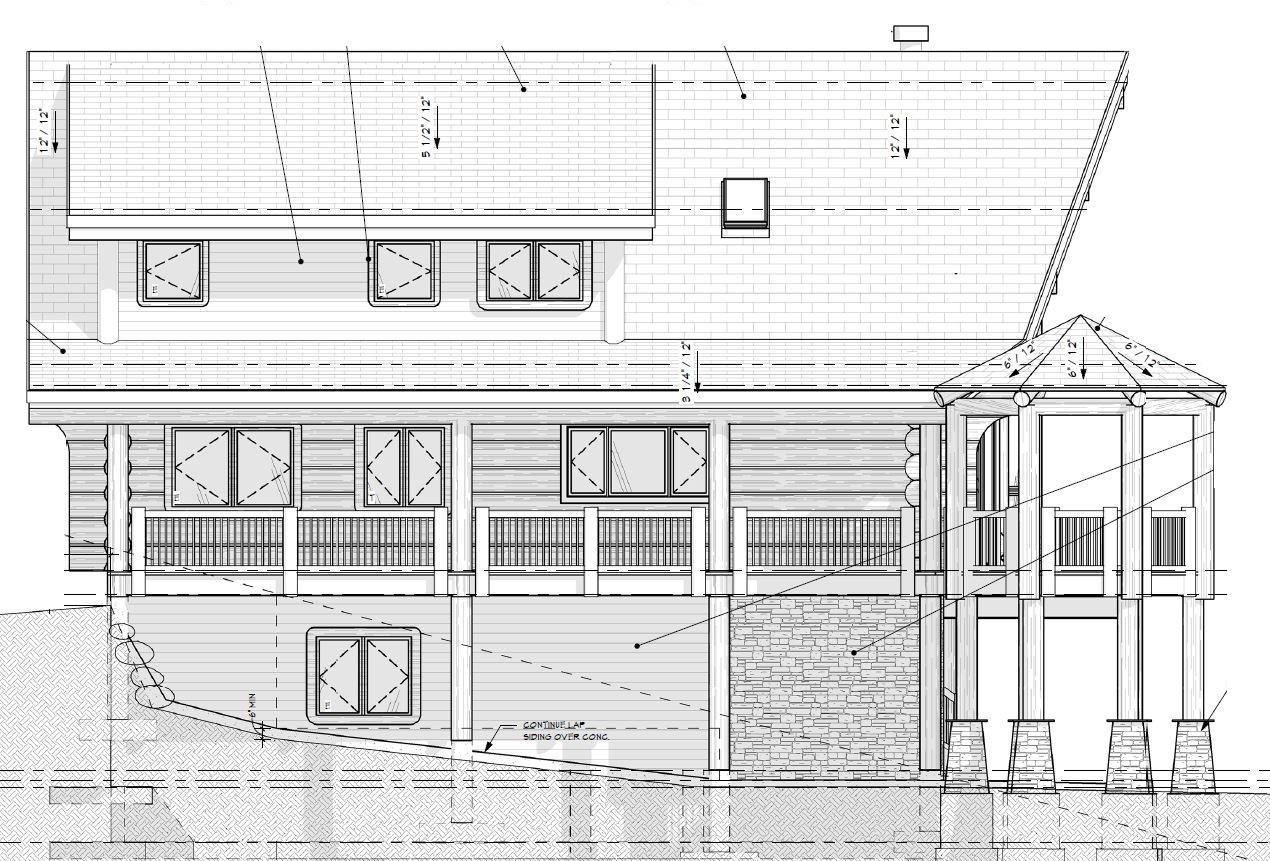
David and Maricris Capaldi log home

We have begun construction on a log home for David and Maricris Capaldi. The Capaldi’s have modified a version of the MLH-019-A home plan, adding a covered staircase and gazebo and adjusting the floor plan to better suit their needs and property. Upon completion of the log package it will be disassembled and delivered to their new home site near Black Hawk, Colorado. Follow along as these large diameter Western Red Cedar logs are handcrafted into this beautiful home.

Categories:

Leave a Reply

Your email address will not be published. Required fields are marked *

This site uses Akismet to reduce spam. Learn how your comment data is processed.

Contact Us